Обяви За нас Контакти
Продава 3-СТАЕН
град София, Павлово
ул. Симеон Радев
244 000 €
477 222.52 лв.

(2 681 €, 5 243.58 лв./m2)
Не се начислява ДДС
История на цената
Коригирана в 13:46 на 16 февруари, 2026 год.
Обявата е посетена 2509 пъти.
Площ:
91 m2
Етаж:
4-ти от 5
Газ:
ДА
ТEЦ:
НЕ
Строителство:
Тухла, Въведен в експлоатация 2025 г.

Описание на имота:


АКТ 16 ! ИЗКЛЮЧИТЕЛЕНО СВЕТЪЛ И ПАНОРАМЕН АПАРТАМЕНТ С ЧУДЕСНО РАЗПРЕДЕЛЕНИЕ! ОСНОВНО ЮЖНО ИЗЛОЖЕНИЕ! КОМПАКТНИ ПАРАМЕТРИ С ПРАВИЛНИ ФОРМИ НА СТАИТЕ! ОТЛИЧНА ЛОКАЦИЯ!
Детайлна информация на www.novdom1.bg Реф. 77289

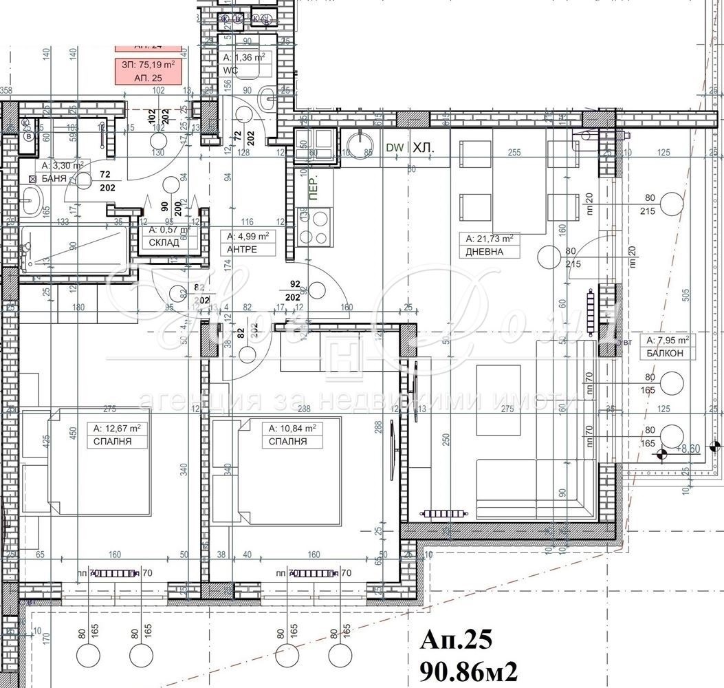
Имотът представлява: Входно антре, югоизточен дневен тракт с кухненска част над 22 кв.м. с излаз на балкон 8 кв.м., югозападна родителска спалня около 13кв.м., югозападна детска стая около 11кв.м., баня с тоалетна, втора тоалетна, както и складово помещение. Застроена площ = 75,18кв.м. ; РЗП = 90,86кв.м. Апартамента е разположен на 4-ри етаж от 5, с изложение югозапад югоизток, без преход и без скосяване. Отличната му цена и локация, го правят чудесно жилище, както за живеене, така и за инвестиция със сигурен доход. Газифицирана сграда с Удостоверение за въвеждане в експлоатация (Акт 16) от 02.12.2025г.

Възможност за закупуване на подземен гараж с цена 37 500Е.

Отлична Локация: Имота се намира в един от най-предпочитаните за живеене и инвестиция райони на град София кв. Павлово. Лесен и бърз достъп до главни пътни артерии, административни учреждения, банки, училища, детски градини, автобусни спирки, детски площадки, аптеки, търговски центрове, супермаркети, козметични студия, заведения и туристически атракции.

Състояние : Имотът се издава съгласно 'БДС' - Екстериорна блиндирана врата Solid. Под : нивелирана замазка подготвена за полагане на гранитогрес, паркет или настилка по Ваш избор. Стени : машинно обработена гипсова мазилка с турбозол подготвена за боя или тапет по ваш избор. Мокри Помещения : ръчно обработена циментова мазилка подготвена за полагане на фаянс и теракота. ВиК инсталация на тапа . ЕЛ инсталация : контакти, ключ и фасонки и ПВЦ дограма. Изградена газова инсталация!

Забележка: Приложените по-горе описания, снимки, скици, архитектурни разпределения и визуализации са предоставени и одобрени от собственика, същите са публикувани с неговото съгласие ! Имотът e със статут на апартамент, което го прави идеален за инвестиция и отдаване под наем !

НОВ ДОМ 1 : Компанията разполага с : Юридически Отдел - извършващ всички необходими юридически и технически проверки на имота, организира всички етапи на сделката до нейното финализиране с нотариално прехвърляне на имота. Кредитен Отдел съдействащ за отпускане на банков кредит при възможно най-добри условия за клиента, като избора на банка се определя спрямо нуждите и възможностите на клиента. Строително-Ремонтен Отдел гарантиращ при нужда цялостен ремонт на вашето жилище до ключ при най-изгодни условия и цени.

'Консултант Недвижими Имоти' : Иван Димитров 0890 555 820
Особености
Тухла
Асансьор
С гараж
Контрол на достъпа
Саниран
За контакт:
0890555820
Брокер:
Иван Димитров
0890555820
Офис: София,бул.Гоце Делчев 98,бл.22,вх.Б,ет.2,оф.1,Крит
Още оферти от брокера: Продава | Дава под наем | Купува | Наема
Агенция:
НОВ ДОМ 1
024180002 ; 024160005
НОВ ДОМ 1 logo
Медал за прослужено време
В imot.bg от 2017 г.
novdom1sf.imot.bg
Адрес:
област София, гр. София, бул. Гоце Делчев 98 ; бул. Александър Малинов 51;
http://novdom1.bg
ИЗПРАТИ ЗАПИТВАНЕ
ИЗПРАТИ ЗАПИТВАНЕТО

Продава 3-СТАЕН
град София, Павлово
ул. Симеон Радев
Обява: 1c175128974649827

244 000 €
477 222.52 лв.
История на цената
(2 681 €, 5 243.58 лв./m2)

Не се начислява ДДС
ЗАПАЗИ ОБЯВАТА

Местоположение: град София, Павлово, ул. Симеон Радев

Допълнителни данни за имотите в района и сравнение с други райони

Покажи

Период

и 3 месеца

* Средните цени са определени чрез медианна стойност